
卓力達公司長期供應高精度金屬掩模板,不銹鋼掩模板,價格實惠,量大從優。
產品可以應用于電子束蒸發,熱蒸發,磁控濺射等設備中,用來制備太陽能電池,光電探測器,LED,激光器,場效應晶體管等各種器件電極及各種薄膜材料圖形設計。
我們已與北京大學,清華大學,中科院蘇州納米所,中科院深圳先進院,蘭州物化的,合肥物質所,武漢大學,華中科技大學,中科院昆明植物研究所,北京航空航天大學,山東大學,浙江大學,吉林大學,華南理工,中山大學,東南大學,蘇州大學,太原理工大學等國內眾多的高校和科研院所以及高技術企業形成了長期合作關系,積累了豐富的設計和制備經驗,具備諸多優勢。
卓力達公司的掩模板制備工藝主要采用曝光腐蝕工藝(與光刻法在硅表面制備高精度的圖案類似),這種方法可以根據客戶要求靈活設計各種圖案,且制備出來的圖案尺寸標準。我們的圖案尺寸精度可以達到0.01mm以上,邊緣銳利無毛刺,開孔直線度好,真圓度好。
在材質的選取方面,我們選用高韌性的SUS304 H不銹鋼材料,這樣做出來的掩模板不但精度高,而且表面光滑,產品不易受彎折而變形,經久耐用,同時還能夠讓掩模板與器件保持很緊密的貼合,減少陰影效果。
我們所采用的不銹鋼厚度包括0.03mm,0.05mm,0.06mm,0.08mm到1 mm的各種尺寸,采用較薄的不銹鋼制備出來的掩模板所產生的陰影效果會更少,擾度更可控。
本公司承接各種圖案定制,客戶最好能提供包含尺寸的CAD版設計圖。如果畫圖實在有困難,我們可以根據客戶描述來繪制,同時我們還能對客戶的掩模板設計提供一些建議。
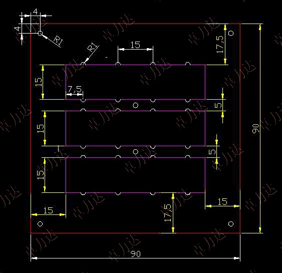
下面先舉幾個掩模板的實例,后面再解釋幾個掩模板的設計技巧。
如下圖所示是各種圖案實例。
上圖為各種圖形的實例,實際上可做的圖形圖案種類更多 如下圖所示是各種柵線電極圖案及其對應的設計圖,圖中掩模板尺寸為9cm*9cm,柵線最小尺寸為0.1mm。 上圖為設計的掩模板的尺寸圖,其中對縫隙的要求比較高,不可以在縫隙中產品毛剌,凸點,缺口,否則會對掩模圖形產生擾度 下面圖為對應的圖紙加的實物圖片 以下為各種的掩模板圖紙和實物相應的對照圖,即用我們的蝕刻工藝,可以最大程度的節省成本,完成掩模板的制作。 以上為掩模板實物對比圖二,下面增加另一種圖案對比 下圖是掩模板的側面圖,所用的不銹鋼厚度為0.1mm。 掩模板設計技巧 如果客戶自己的設備有較好的樣品架,可以只考慮做一片上面所示的單片掩模板就行。如果沒有較好的固定器件的方案,建議采用我們的疊層設計法。下面以0.1mm的柵狀電極為例進行詳細說明。 如圖所示,客戶可以設計四種不銹鋼片,其中右下角的為帶電極圖案的掩模板。右上角為固定器件的方格板,我們將方格板用螺絲固定到掩模板上面就可以防止電池片的左右移動。方格板的厚度可以根據器件的厚度來定制,如圖中所示的方格板就是可以放入厚度為0.5mm,邊長為1*1cm的電池片共16片。客戶還可以一次性設計幾個不同厚度的方格板,這樣自己就可以通過將不同厚度的方格板疊合在一起形成任意組合的厚度,以便于用于不同厚度器件的電極蒸鍍。如果想進一步固定電池,則可以設計一個如左下角一樣的光板覆蓋到方格板上面,這樣一方面能完全將器件固定,在一些需要將掩模板豎放或反放的設備中可以讓器件不掉或松動;另一方面還能在蒸鍍電極時防止器件背面被金屬蒸汽污染。另外,由于掩模板比較薄,若面積過大可能會發生一定的彎曲,客戶還可以設計如左上角所示的掩模板固定片壓住下面的掩模板,或者通過設計更加密集的螺絲孔,使掩模板更加平整穩固。 上圖給出了另外一種疊層型掩模板的例子。這是用于制備有機太陽能電池中的條狀電極設計的,照片中的第一排放置了兩片ITO玻璃片。值得指出的是,為便于用鑷子等工具對器件進去夾取,客戶可以在固定用的方格板上設計如圖所示的半圓形缺口。 上下片的組合效果圖 下圖為組合上下片后的放大效果 上面的掩模板設計圖如下,其中用于固定的方格板厚度為1mm,而掩模板的厚度為0.2mm。 由于篇幅有限,上面只列舉了幾個簡單的例子,大家可以和我們聯系索要更多的圖案實例和設計技巧。后期我們將制作跟多掩模板設計技巧和電極蒸鍍技巧,同時歡迎訪問我們的頁面進行更多了解:http://www.www.wzreshuiqi.cn.jpg)
.jpg)
.jpg)
.jpg)
.jpg)
.jpg)
.jpg)
.jpg)
.jpg)
.jpg)
.jpg)

.jpg)
.jpg)




.jpg)

在IC加工過程中,需要使用中間掩模板和光掩模板。我們定義中間掩模版是為整個基片曝光而必須分步和重復的包含圖像的工具。通常圖像的尺寸被放大到基片上圖像的2倍到20倍,但在一些情況下也用相等的圖像。光掩模版被定義為在一次曝光中能把圖形轉移到整個硅片中(或另一張光掩模版上)的工具。中間掩模版有兩種應用:1)把圖形復印到工作掩模版上。2)在分步重復對準儀中把圖像直接轉移到硅片上。在1X硅片步進光刻機中,掩模版上的圖形與投影到硅片上圖形一樣大;在縮小步進光刻機中,掩模版上的圖形是放大的真實器件圖像。
模版
得到圖形。掩模版制作商業化的說法是有意義的,而且在商業領域和掩模版

地址:深圳市寶安區福永鎮新和村福園一路華發工業園A3棟
電話:0755-61500558 直線:0755-29914202
隗(yu)小姐:136 2020 3959 yw6@www.wzreshuiqi.cn
相關資訊
- 2012-05-26日本電器產業“斷臂裁員”能自救?
- 2012-03-17蝕刻標牌的應用
- 2012-05-26國內國際新聞大事解讀
- 2012-03-17金屬蝕刻的各種方法
- 2012-05-23鎳下降 不銹鋼出口價錢終于放松了
- 2025-06-18為什么要選擇掩膜版電鑄加工
- 2025-06-18高精度蝕刻加工廠家如何篩選
- 2025-06-17金屬蝕刻加工廠家如何挑選
- 2025-06-17電鑄光闌加工流程
- 2025-06-16蝕刻加工網技術解析與應用全覽








.jpg)
.jpg)
.jpg)
.jpg)

.jpg)
.jpg)



